Thoughtfully designed homes tailored to meet the needs of active seniors seeking independence, community, convenience, and a peace of mind to "Age in Place."

Thoughtfully designed homes tailored to meet the needs of active seniors seeking independence, community, convenience, and a peace of mind to "Age in Place."
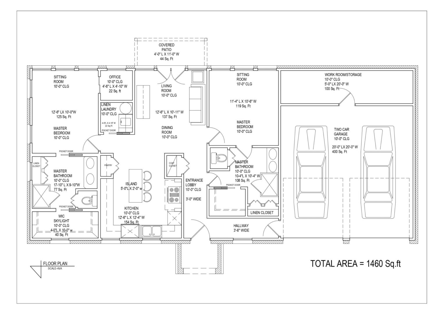
1460 sq ft ranch layout with two-car garage
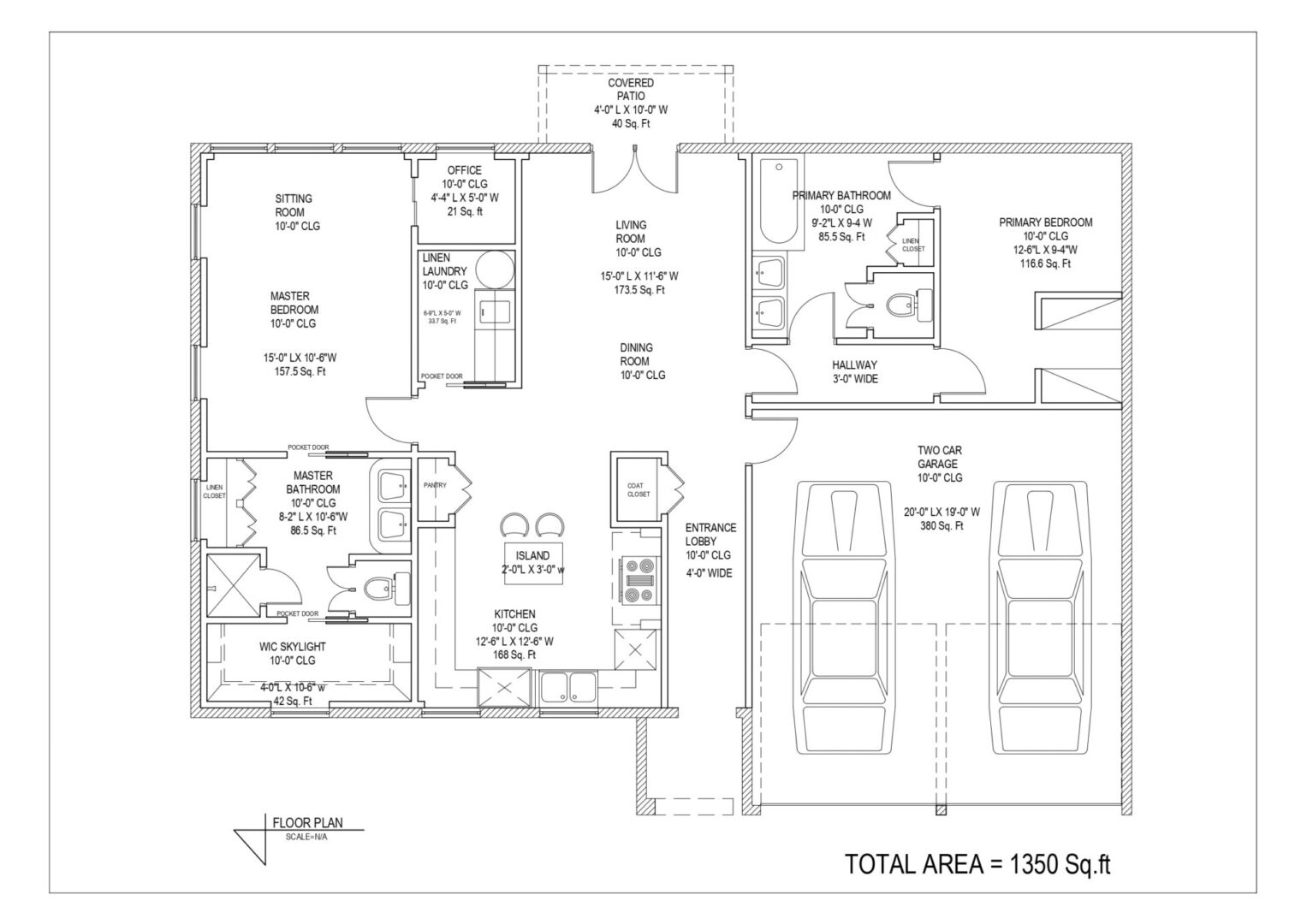
1350 sq ft home floor plan with garage
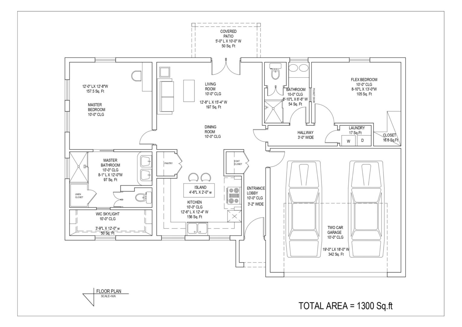
1300 sq ft home floor plan with garage

Key features of Universal Design for senior living: Single level, open floor plan, wider doorways , step free entrance and showers, lever style handles on doors and faucets, grab bars in bathrooms, easy access drawers and cabinets, and ample lighting.